SATPLAN Ltd are preparing a full planning application on behalf of Bowsall Developments Ltd and Plus Dane Housing for 30 affordable apartments with associated access, landscaping and parking on the Former Strawberry Tavern Public House, Breckfield Road South, Everton, Liverpool.
We are currently undertaking a period of consultation on the draft proposals so that neighbours and businesses have an opportunity to engage in the process prior to a full planning application being submitted.
Comments received will be used to inform and refine the full planning application before it is submitted to Liverpool City Council.

Scheme benefits:
▪ The scheme provides 30 one-bedroom apartments, all available for social rent.
▪ The project brings a cleared, vacant brownfield site back into active and beneficial use for the community.
▪ The dwellings will be energy efficient, affordable to heat and light and comply with the latest Building Regulations.
▪ 15 car parking spaces and 34 cycle spaces will be provided on the site.
▪ The proposals provide opportunities to deliver biodiversity improvements to the land.
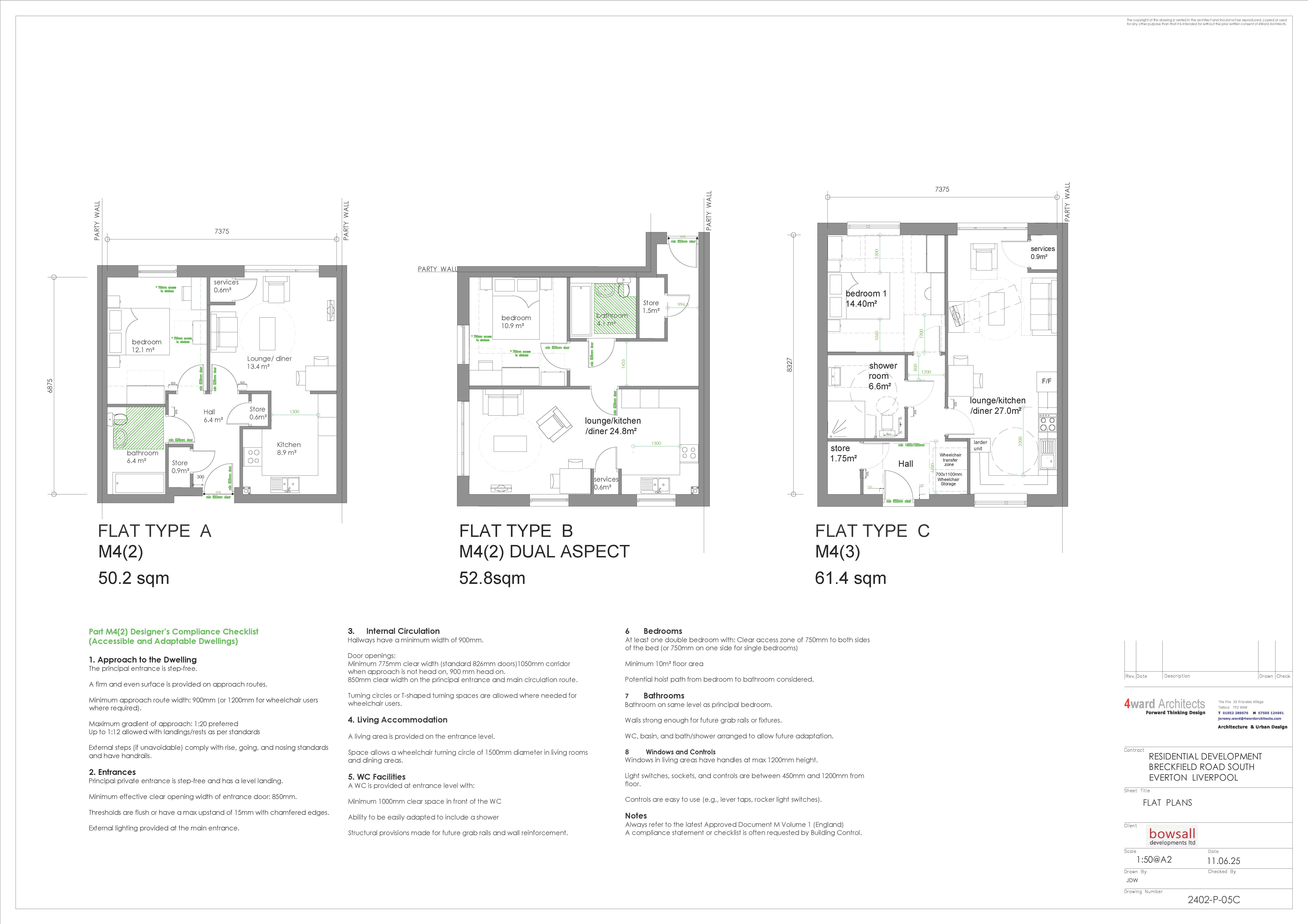
▪ The development is fully compliant with Nationally Described Space Standards and Accessibility Standards. This means they are comfortable for everyday living and will including features like step-free access and adaptable layouts.
▪ The development will provide new jobs in the construction phase and within the supply chain.
Proposed site location and position
Proposed building elevations
Proposed floorplans
Timeframes and applications
These homes are not currently available for applications.
These homes will be managed by Plus Dane and we will release details of how to apply for homes within the development nearer to completion.
The current estimate for completion and expressions of interest is 2027
How to comment:
The consultation period will be open until Wednesday 10 September 2025.
Please submit comments to consult@sat-plan.co.uk or by post to:
SATPLAN Ltd, The Bridgewater Complex, 36 Canal Street, Liverpool, L20 8AH
Please send all comments by Wednesday 10 September 2025.